[3台在庫あり]NNLK42525J 天井直付型 40形 器具本体
¥4,448
税込
加算ポイント:40
メーカー:パナソニック
型番: NNLK42525J
関連カテゴリ
商品詳細
※現在3台在庫ございますので平日午前中のご注文で即日発送可能です。商品詳細
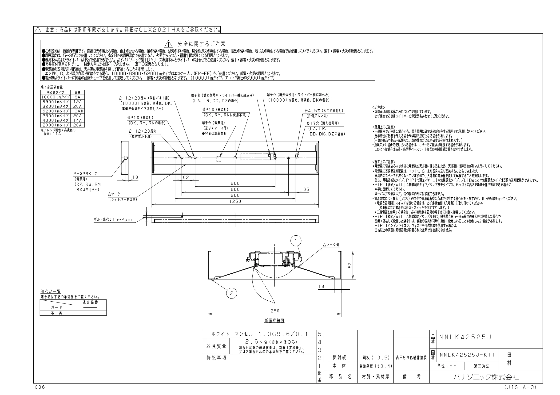
寸法・質量
◆幅:250 mm ◆長:1250 mm ◆高:53 mm
仕様・注意事項使用に関しての留意点
仕様・注意事項
使用に関しての留意点
◆【本体】亜鉛鋼板
◆【反射板】鋼板(高反射白色粉体塗装)
◆600ピッチ、800ピッチのボルトに対応します。(LE・RZ)
◆注)本器具は、パナソニック製iDシリーズ専用の器具本体とライトバーとの組み合わせで性能を満足します。ライトバーの単独使用禁止およびパナソニック製iDシリーズ以外の商品とは組み合わせをしないでください。
◆注)一般屋内用器具です。屋外環境(軒下など半屋外を含む)や腐食性ガスの発生する場所、太陽の光が直接器具に当たる場所では使用できません。
◆注)電磁波低減タイプライトバーと組み合わせてお使いの場合、取付幅600ピッチはご使用になれません。800ピッチでお取付ください。
◆注)アレンジ調色タイプライトバーと組み合わせてお使いの場合、中央電源穴はご使用になれません。
◆注)PiPit調光タイプライトバーは器具内送り配線できません。

![[3台在庫あり]NNLK42525J 天井直付型 40形 器具本体](/html/upload/save_image/NNLK42525J.webp)





